Charts, Maps & Diagrams

St. Joseph Watershed

We have both a municipal separate stormwater system and a combined sewer system. Stormwater regulations currently only apply to the municipal separate stormwater system or MS-4 for short. These are the systems on the St. Joseph Watershed Map (PDF) that begin with 102, indicating a direct untreated discharge of storm sewers to the 102 River. The watersheds on the west with creek names are serviced by the combined system where the Combined Sewer Overflow (CSO) Long-Term Control Plan is in place.

Household Hazardous Waste

The Household Hazardous Waste Chart (PDF) from the Water Environment Federation will show you effective ways to dispose of household waste and contribute to a sustainable clean environment.

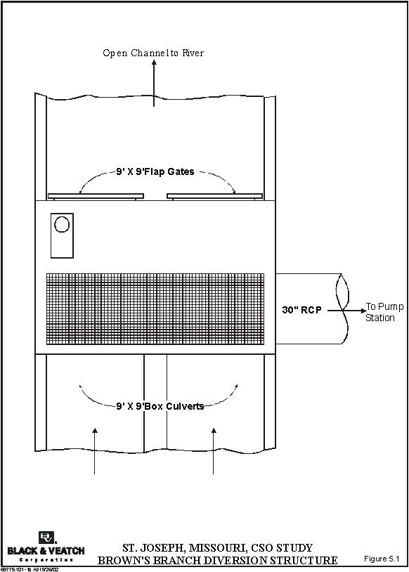
CSO Maps & Diagrams